Benutzer-Werkzeuge

Webseiten-Werkzeuge


sicherheitssysteme:brand-t:historie_nebenmelderzentralen:bz_1028_1056_1168

Historie der Brandmelderzentralen


BZ 1028 / BZ 1056 / BZ 1056 LB / BZ 1168


-Einsatz ab ca. 1980-


Ansichten der BZ 1028 und BZ 1056







Baugruppenübersicht

Funktion der Zentrale


Link zu funktionen.pdf



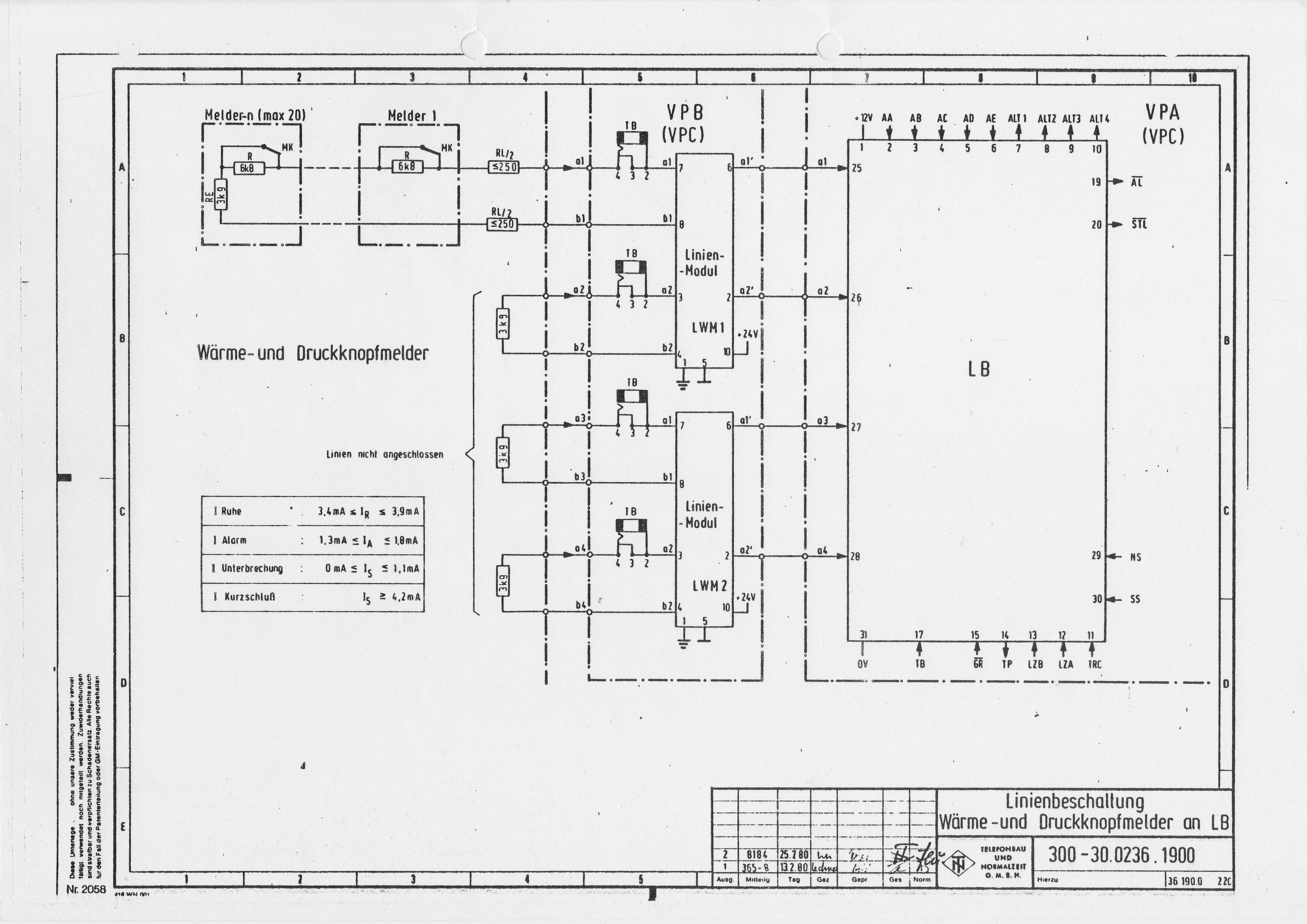
Beispiel einer Linienanschaltung






Weitere Linienanschaltungen


Link zu linienbeschaltungen.pdf




Hinweis zur BZ 1056 LB: der Zusatz LB bedeutet mit „Löschbereichsansteuerung“

—————————————————————————————————————————

BZ 1168


-Einsatz ab ca. 1980-


Brandmelderzentrale BZ 1168




Produktinformation PI 32.44 Brandmelderzentrale BZ 1168 (Juli 81):

Link zu pi_bz_1168.pdf


sicherheitssysteme/brand-t/historie_nebenmelderzentralen/bz_1028_1056_1168.txt · Zuletzt geändert: 03.03.2022 16:44 von wilbes