In diesem Menü gelangen Sie schnell zu dem entsprechenden Bereich der TN-Dokumentation:
Uhren- Zeitdienst- Anzeigesysteme
In diesem Menü gelangen Sie schnell zu dem entsprechenden Bereich der TN-Dokumentation:
Uhren- Zeitdienst- Anzeigesysteme
Unter Konzessionsanlagen versteht man Hauptmelder-Empfangszentralen in den Gebäuden von
Polizei oder Feuerwehr, auf welche berechtigte Anschlussnehmer aufgeschaltet sind.
Der Betreiber dieser Empfangszentrale (z.B. T&N) erhält von der entsprechenden Behörde
(Pol. oder FW) einen sog. Konzessionsvertrag.
Nachfolgende historische Darstellung zeigt das Prinzip einer Hauptmelderanlage Notruf
(veröffentlicht durch die Pressestelle der Polizei Frankfurt am 28.09.1978):
Das Bild zeigt, dass der HM nicht zur Nebenmelderanlage gehört,sondern Bestandteil der Empfangszentrale ist.
Der Hauptmelder und sein zughöriger Anteil in der Hauptmelderzentrale bilden die Hauptmelderanlage.
———————————————————————————————————————————
Medienberichte 1978 über die 1000. Aufschaltung auf die Polizeinotruf Hauptmelderanlage in Frankfurt/Main:
————————————————————————————————————————————
Link zu rd-erlass.pdf
—————————————————————————————————————————————
-Einsatz ab ca. 1920-
Kleine Empfangszentrale GZ 1001
Anschließender Link führt zu weiteren Empfangszentralen:
————————————————————————————————————————————
Link zu p801-2_bl_1-3.pdf
—————————————————————————————————–
———————————-
Link zu pi_ngue_20.pdf
Link zu pi_ngue_30.pdf
Link zu pi_ngue_40.pdf
-Einsatz ab ca. 1990 (Vorläufer ist CDM 1010)-
Link zu pi_cdm_sender.pdf
-Einsatz ab ca. 1920-
Nachstehend sehen Sie eine Sammlung historischer TN-Hauptmelder von ca. 1950 bis 1980.
Diese Fotos stellte uns freundlicherweise Herr Francis Kayser, Luxemburg, zur Verfügung:
Link zu tn-hm.pdf
Alle Fotos mit freundlicher Genehmigung durch das Deutsche Feuerwehrmuseum Fulda, Herr Schamberger.

Ansicht Laufwerk-Hauptmelder im Holzgehäuse ca. 1940

Blick auf die Anschlussklemmen
Elektrischer Schaltplan des Hauptmelders
——————————————————————————————————————————————–

Ansicht Laufwerk-Hauptmelder ca. 1960

Ansicht Laufwerk-Hauptmelder geöffnet, ca. 1960
Noch eine Information zum Türkontakt (in der oberen Tür) und warum ein Telefonhörer gebraucht wurde:
bei Öffnen der oberen Tür wurde mit dem Türkontakt bei der Empfangszentrale ein Revisionswunsch erzeugt.
Nach Sprachverbindung über den Hörer und Identifizierung des Revisors wurde der Hauptmelder dann von der Empfangszentrale in Revision genommen.
Wird anschließend bei Prüfarbeiten Vorort ein Feueralarm ausgelöst, wurde aus ihm ein sog. „Revisionsalarm“,
der natürlich keinen Feuerwehreinsatz zur Folge hatte.
Nach Beendigung der Prüfarbeiten wurde der Hauptmelder dann vom Revisor telefonisch „Klar gemeldet“ und bei der Empfangszentrale wieder „Scharfgeschaltet“.
Bei anderen HM-Ausführungen, z.B. bei dem folgenden Foto Modell Frankfurt, gab es keinen eingebauten Hörer, sondern er besaß einen Handapparate-Klinkenstecker, so dass der Revisor mit seinem mitgeführten Hörer telefonieren konnte.
Diese Methode wurde später Standard (auch bei Notruf-HM).
Der Hörer verdeckt auf dem Foto zum Teil die Information auf dem Hinweisschild für die Revisionstelefonie. Nachfolgende Abb. zeigt den vollständigen Text:


Elektrischer Schaltplan des Hauptmelders
————————————————————————————————————————————
Ansicht Feuer-Hauptmelder Modell Frankfurt um 1960:

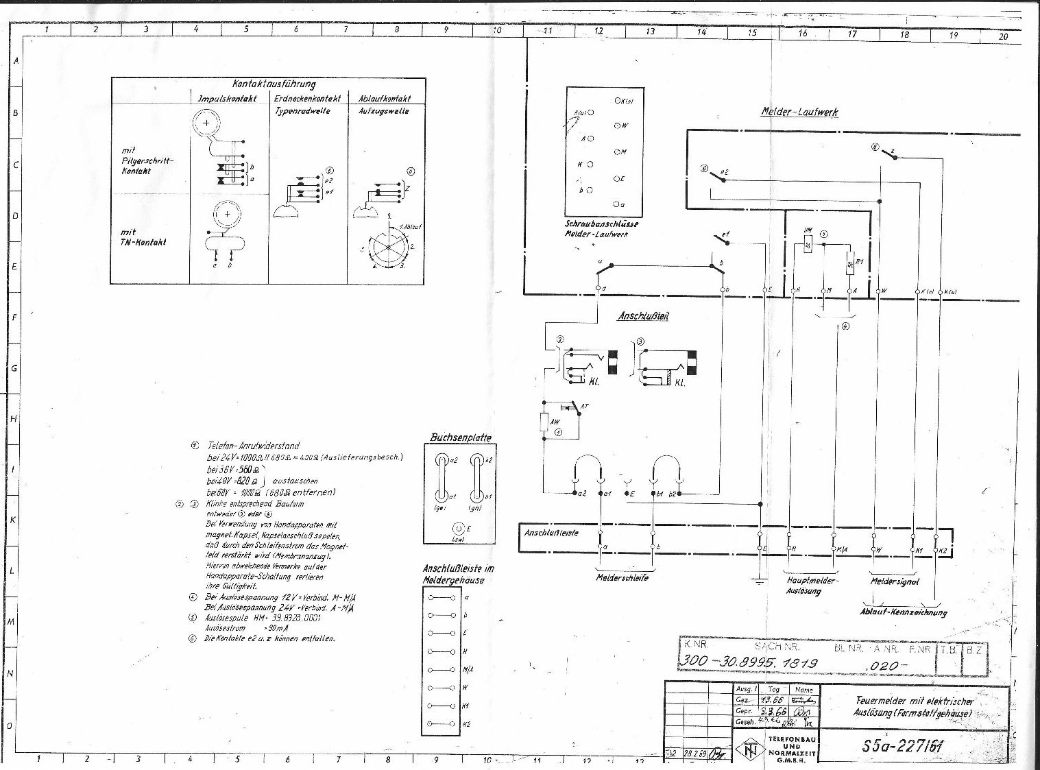
Elektrischer Schaltplan des Hauptmelders:
——————————————————————————————————————————————–
Link zu pi_bgue_20_ue.pdf
Link zu bgue_20.pdf
Link zu bgue_40.pdf